![]() |
| 你当前的位置:首页>>液压与气动>>液压传动基本回路.目录 |
快速回路 |
差 动 连 接
|
![]() |
当手动换向阀处于左位时,液压缸为差动连接,活塞快速向右运行。设液压泵供给液压缸的流量为Q,液压缸无杆腔和有杆腔的有效作用面积分别为A1和A2,则液压缸活塞的运动速度为:
v=Q/(A1-A2) |
自
重 补 油 |
![]() |
垂直安装的液压缸,与活塞相联接的工作部件的质量较大时,可采用自重补油快速回路。当换向阀处于右位时,若活塞下降所需流量大于液压泵的供油量,液压缸上腔呈现负压,液控单向阀1打开,辅助油箱2里的油液补入液压缸上腔,活塞快速下行。当接触工件后,液压缸上腔压力升高,液控单向阀1关闭,开始工作行程。用单向节流阀4来调节活塞快速下行时的速度. |
增
速 缸 |
![]() |
当换向阀A处于左位时,液压泵只向增速缸的Ⅰ腔供油,因其有效面积较小,因而活塞快速向右运动。此时,液压缸的Ⅱ腔经二位三通电磁阀B从油箱自吸补油。当活塞快速运动到设定位置时,行程开关发信号,使二位三通电磁阀B通电,使液压泵输出的液压油同时进入Ⅰ、Ⅱ腔,此时,Ⅱ腔活塞的有效作用面积增大,实现慢速进给. |
辅
助 缸 |
![]() |
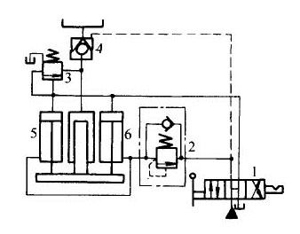
此回路在大中型液压机液压系统中普遍使用。当三位四通手动阀1处于右位时,压力油直接进入有效作用面积较小的辅助缸5和6的上腔,(因快速运动时,负载压力较小,因而顺序阀3关闭),使主缸和辅助缸的活塞同时快速下降。主缸上腔经液控单向阀4自高位油箱自吸补油。当接触工件后,工作压力升高到顺序阀3的设定压力时,顺序阀打开,压力油同时进入主缸和辅助缸,实现慢速压制工况. |
高
低 压 双 泵 |
![]() |
系统工作时,因外载荷较小,卸荷阀2关闭,低压大流量泵3和高压小流量泵1同时向液压缸供油,实现快速。工进时,小泵工作,大泵卸荷,可减少功率损失. |
变
量 泵 |
![]() |
变量泵的输出流量随载荷变化而变化,当系统快速工作时,因载荷较小,泵处于最大摆角状态,输出较大流量,满足快速要求. |
蓄
能 器 |
![]() |
电磁换向阀处于中位时,蓄能器充油;当换向阀处于左位时,液压泵和蓄能器同时向液压缸供油,实现快速进给. |
版权所有 民众工作室.制作 |