你当前的位置:主页>>Solidworks>>专题教程  
  高级工程图概述
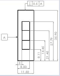
               插入形位公差符号(Inserting a Geometric Tolerance Symbol)

    接下来,插入参考基准特征符号的形位公差符号。

  1. 单击上边线,如图所示。当您预选边线时,形位公差符号自动放置。

   

  1. 单击形位公差 (注解工具栏)。

  2. 在对话框中:

    1. 符号中选择

    2. 公差1 键入 0.5

    3. 主要键入 A

    4. 单击确定

  3. 如图所示移动符号。

   



   下一步

        第  16  页    共  25  页

民众工作室.制作   版权所有